さとやまの寛ぎと安らぎを貴方に
能美市和気町 絶景+無垢材の家

能美市和気町 絶景+無垢材の家

2026年1月5日

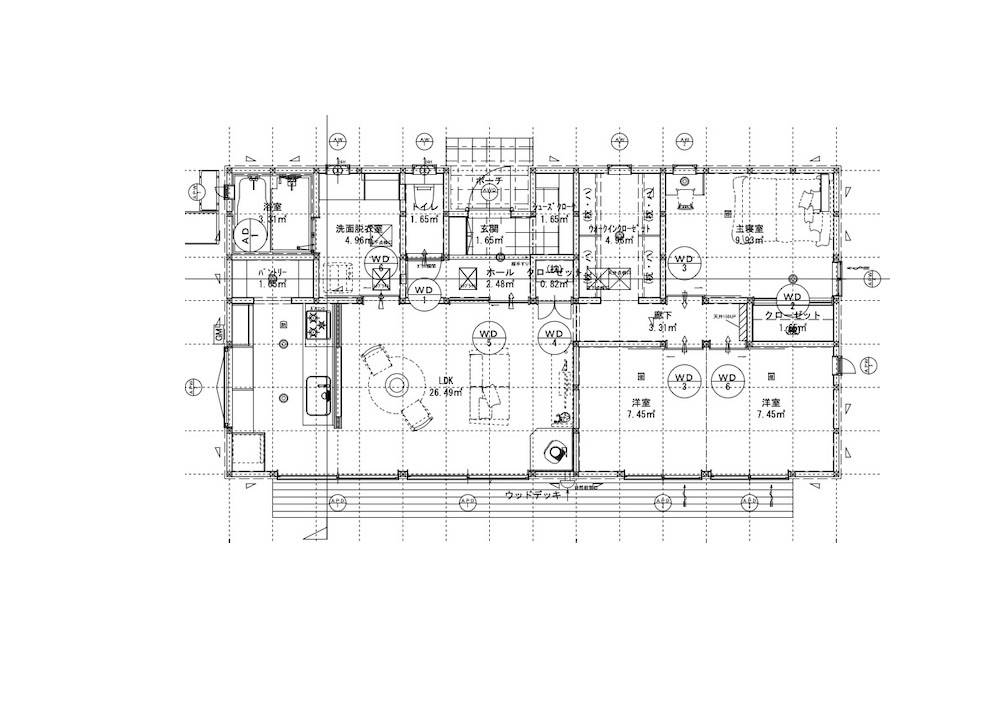
好評をいただいております、自社開発建売住宅、無垢の家3軒目が完成しました。今回は、建売でも絶景が楽しめる家がコンセプトです。どこにもベニヤ板やビニールクロス、市販の建具が見当たらない、全室漆喰壁塗り、一生共に暮らせる家が完成しました。木塀、メッシュフェンス、駐車場コンクリート、植栽、庭石など全て外構も装備したお家となっています。

2026年1月から4月までの間、モデルハウスとして公開をさせていただきます。内見申し込みは下記のフォームよりご記入ください。皆様の来場をお待ちしております。

建物全景
previous arrow
next arrow